轻质隔墙#轻质隔墙板#

生活智慧收获 2023-08-04 17:57:16
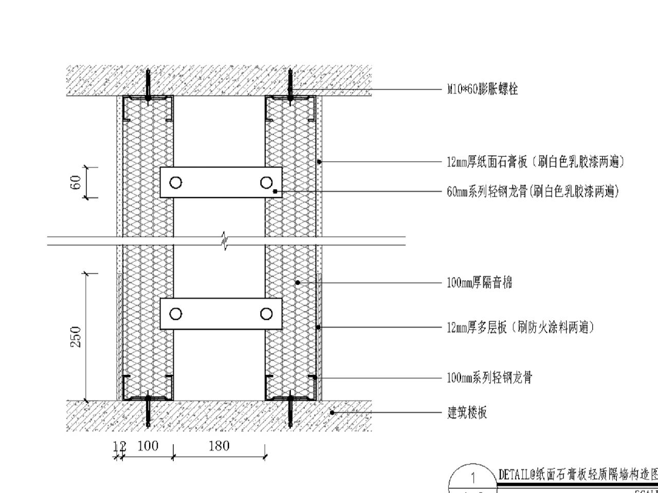
施工要点 岩棉板轻质隔墙三维示意图 1.12厘板是由木段旋切成单板,或由木方刨切成薄木,再用胶黏剂胶合而成的3层或多层的板状材料,通常用奇数层单板,并使相邻层单板的纤维方向互相垂直胶合而成。 2.基层墙体应坚实平整、表面干燥,不得有开裂、空鼓、松动或泛碱,所有岩棉板的穿墙管线与构件出口部位应用相同材料填实后进行防水密封处理。 纸面石膏板轻质隔墙三维示意图 1.天地龙骨是在隔墙内部与屋顶连接处和与地面连接处铺设的龙骨,当中会有竖向龙骨做支撑,还有穿心龙骨从竖向龙骨中间穿插进去,起到加固作用。 2.隔音棉是与墙面或天花板存在空气层的穿孔板,即使材料本身隔音性能很差,这种结构也具有隔音性能,如穿孔的石膏板、木板、金属板、甚至是狭缝隔音砖等 隔音棉轻质隔墙三维示意图 1.隔音棉与墙面或天花存在空气层的穿孔板,即使材料本身隔音性能很差,这种结构也具有隔音性能,如穿孔的石膏板、木板、金属板、甚至是狭缝隔音砖等。 2.在房间干燥条件不是很好时使用双层石膏板,是考虑增强墙面的抗裂性和防潮性 埃特板轻质隔墙三维示意图 1.埃特板具有很多优越的性能,例如强度高、耐久性好等,密度和厚度也有很多种,具有防火、防潮、防水、隔音效果好、环保、安装快捷、使用寿命长等优点。 2.做防水施工时,基层要保证洁净,否则易在施工时因穿刺而失去防水作用;含水率不大于9%,否则会形成基面与防水层分离的“两张皮”现象。

0 阅读:0