万益资讯网
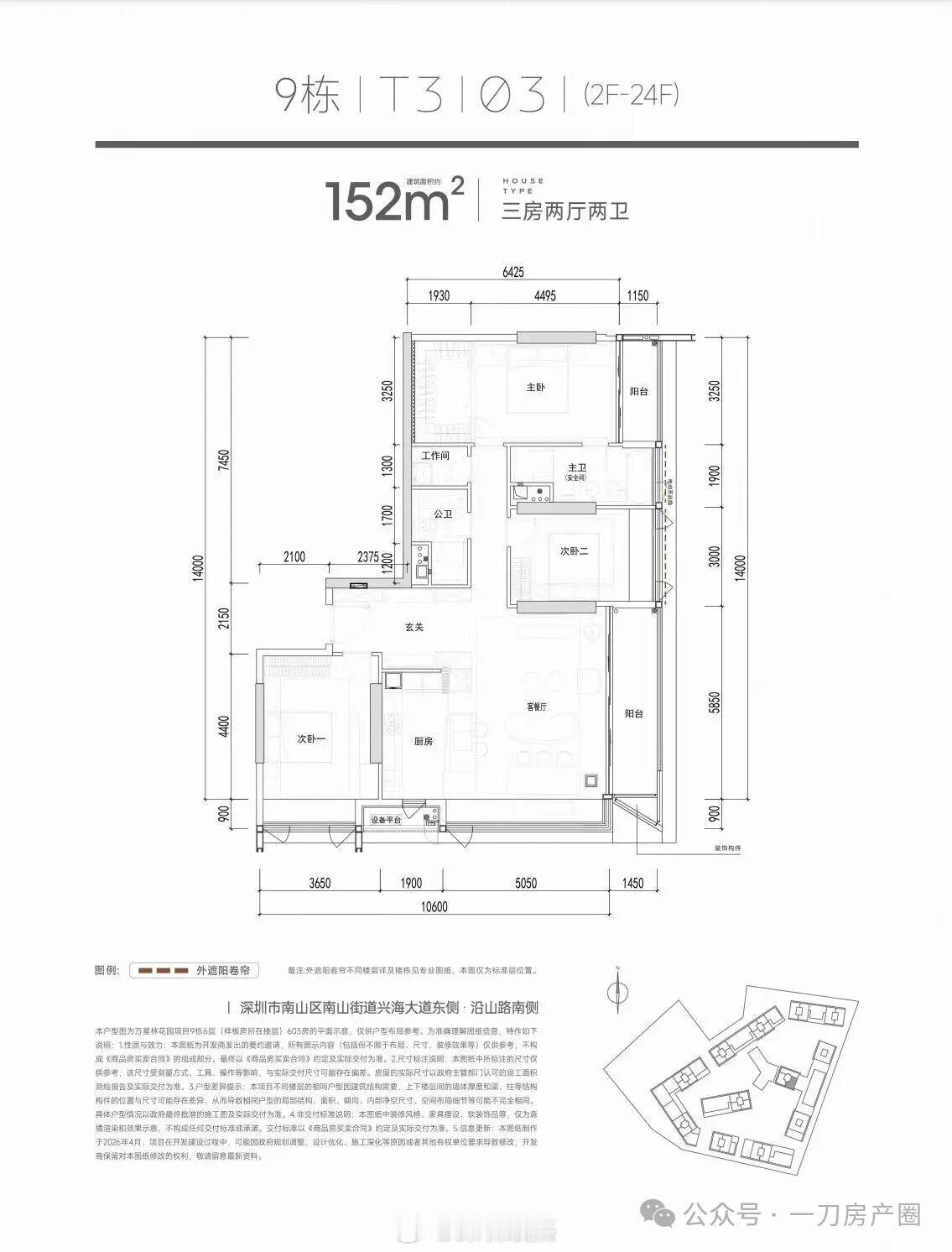
深圳南山的开发商发明的最新户型设计:跑道户型。总价150平说是预计1350-16
2026-04-29 09:00:36
政杰聊商业
财经
深圳南山的开发商发明的最新户型设计:跑道户型。
总价150平说是预计1350-1650万左右,单价8.8万-10.8万。
位置在大南山那边,隔壁就是前海妈湾。 深圳
猜你喜欢
朋友,你是不是也对那种一梯一户、客厅能跑步的大平层心动过?觉得那才是人生的终极目
2026-04-27
家居大超人
标签:
客厅
跑步
这款自建房户型,设计师很用心😡😡可以说是农村大家庭,建房的天花板,
2026-04-28
自建房好参谋的小助理
标签:
天花板
设计师
农村
带详细尺寸的别墅设计图纸。农村自建房别墅设计自建房设计别墅
2026-04-28
家筑自建房别墅设计
标签:
农村自建房别墅
农村自建房
农村
尺寸
新房装修,是不是总有人劝你把开发商的东西全换掉?别急着当冤大头!入户门花大几千换
2026-04-28
网邻小百货
标签:
卫生间
厨房
玻璃
深圳“合并不了”惠阳。在2020年左右,深圳官方思路已退而求其次,从追求行政区
2026-04-28
湖腾建海
标签:
深圳
惠阳
广东社会新闻
99平缤纷小三房,不得不说,这入户鞋柜真的值得抄!家居设计家居
2026-04-27
潮流家居的手册
标签:
小三
鞋柜
这个价格是卖她的设计?这也不好看啊
2026-04-27
煊栩看娱乐
标签:
徐艺洋
项链
手链
耳钉
幸亏没听劝,家里的柜子这样设计太香了,设计师都夸我有才!装修时,全屋定制的设计
2026-04-28
家居美少女
标签:
装修
设计师
鞋柜
长裙
热门分类
推荐
热榜
军事
NBA
体育
社会
明星八卦
娱乐
财经
科技
汽车
历史
国际
游戏
动漫
公益
搞笑
商业
互联网
数码
国际足球
房产
家居
时尚
科学探索
职场
育儿
股票
教育
影视
情感
热点
中国军情
武器
中国南海
中国足球
亚洲杯
科比
综合体育
CBA
投资
楼市
大咖秀
外汇
创业
风口
SUV
豪车
概念车
优惠
新能源
美国
欧洲
朝日韩
俄罗斯
孕期
街拍
恋爱攻略
婚姻
正能量