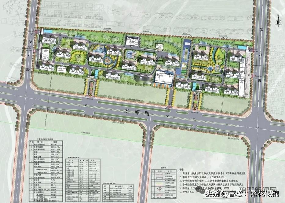
中标价两亿多,山东天元第七建设工程有限公司中标罗庄某城中村改造项目 2026年1月23日,临沂某招标采购平台发布中标公示,由山东天元第七建设工程有限公司中标了罗庄朱陈东社区的城中村改造项目,主要建设7栋十七层的小高层还有社区配套设施,幼儿园等。 工期730天,两年就交付使用了,对朱陈社区居民来说真是一个好消息。



中标价两亿多,山东天元第七建设工程有限公司中标罗庄某城中村改造项目 2026年1月23日,临沂某招标采购平台发布中标公示,由山东天元第七建设工程有限公司中标了罗庄朱陈东社区的城中村改造项目,主要建设7栋十七层的小高层还有社区配套设施,幼儿园等。 工期730天,两年就交付使用了,对朱陈社区居民来说真是一个好消息。



作者最新文章
热门分类
社会TOP
社会最新文章